PROJEKTO PAVADINIMAS

VERY GOOD PROJECT 87

 

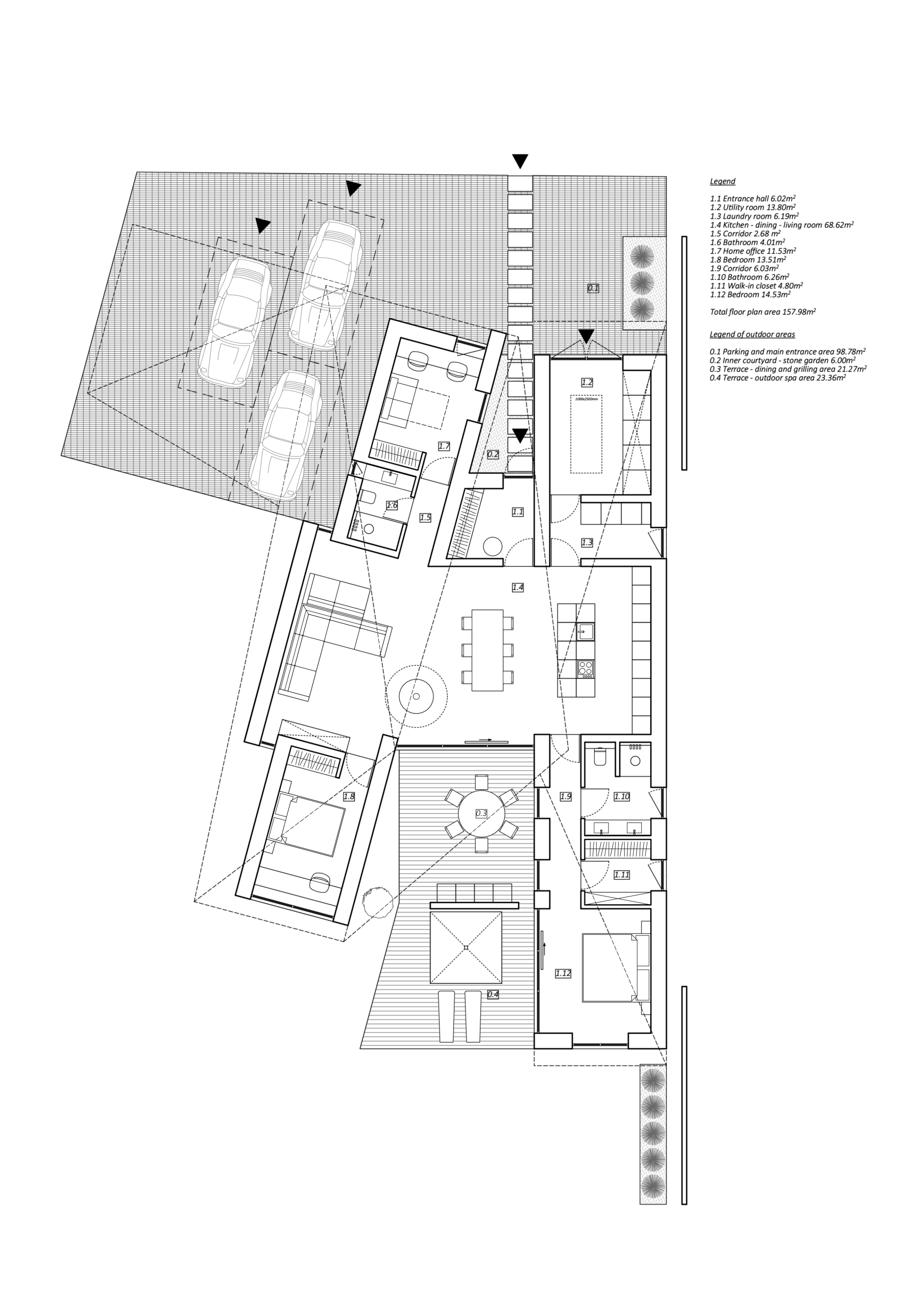
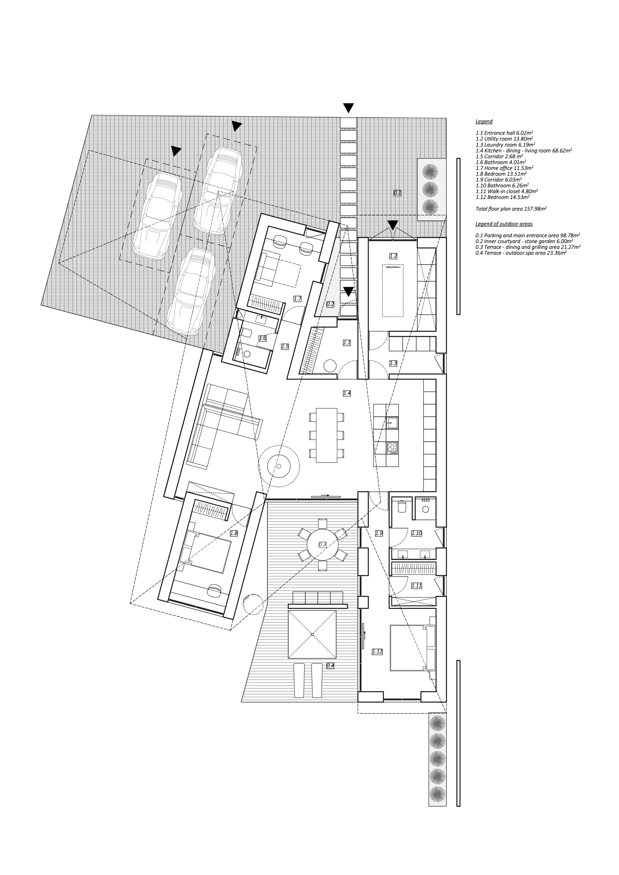
PASKIRTIS

Privatus, gyvenamasis

 

VIETA

Vilnius, Lietuva

 

KVADRATŪRA

158 m2

 

METAI

2025 – iki dabar

 

APRAŠYMAS

Privati vila Vilniuje.