PROJEKTO PAVADINIMAS

VERY GOOD PROJECT 77

 

PASKIRTIS

Privatus, gyvenamasis

 

VIETA

Vilnius, Lietuva

 

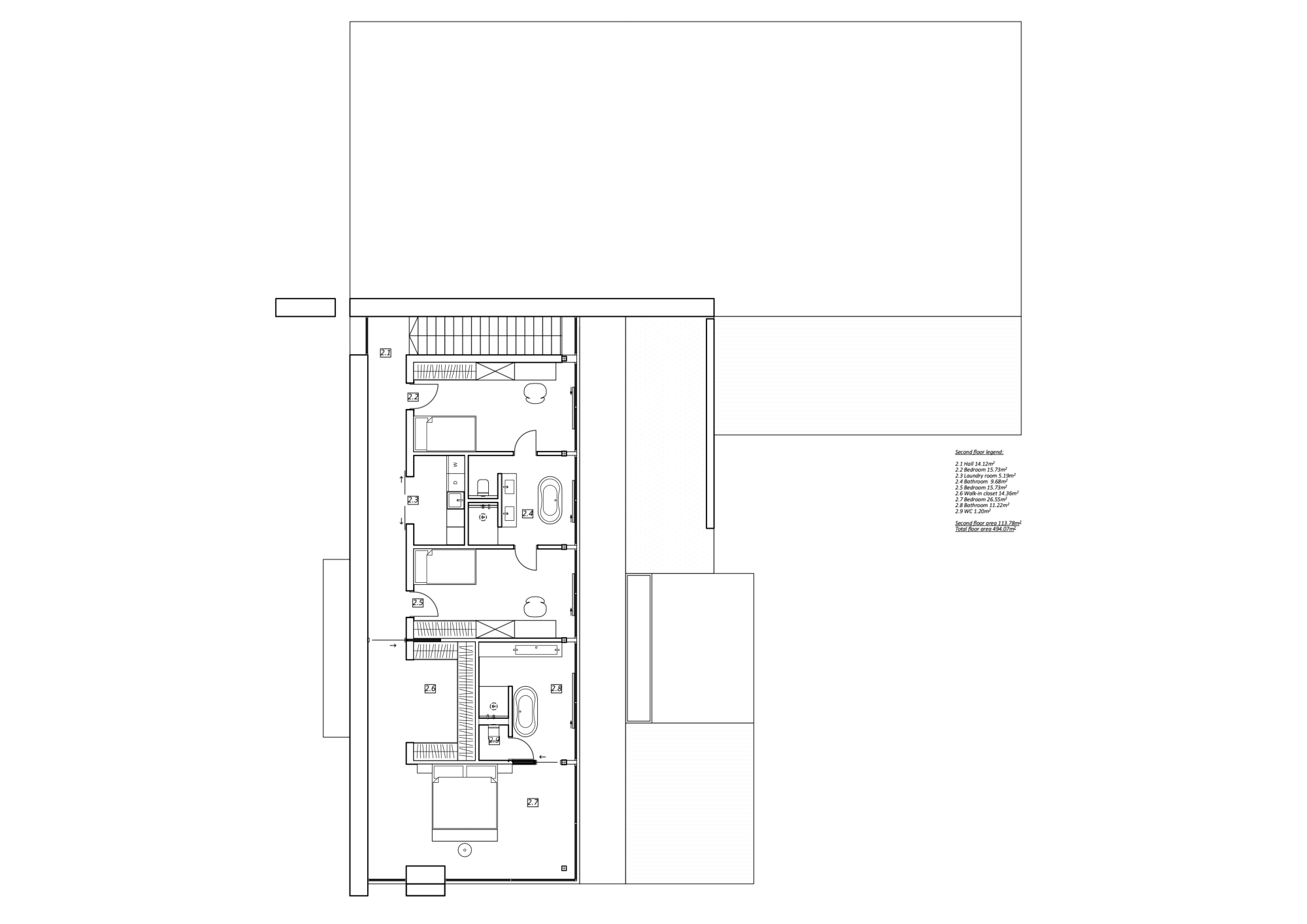
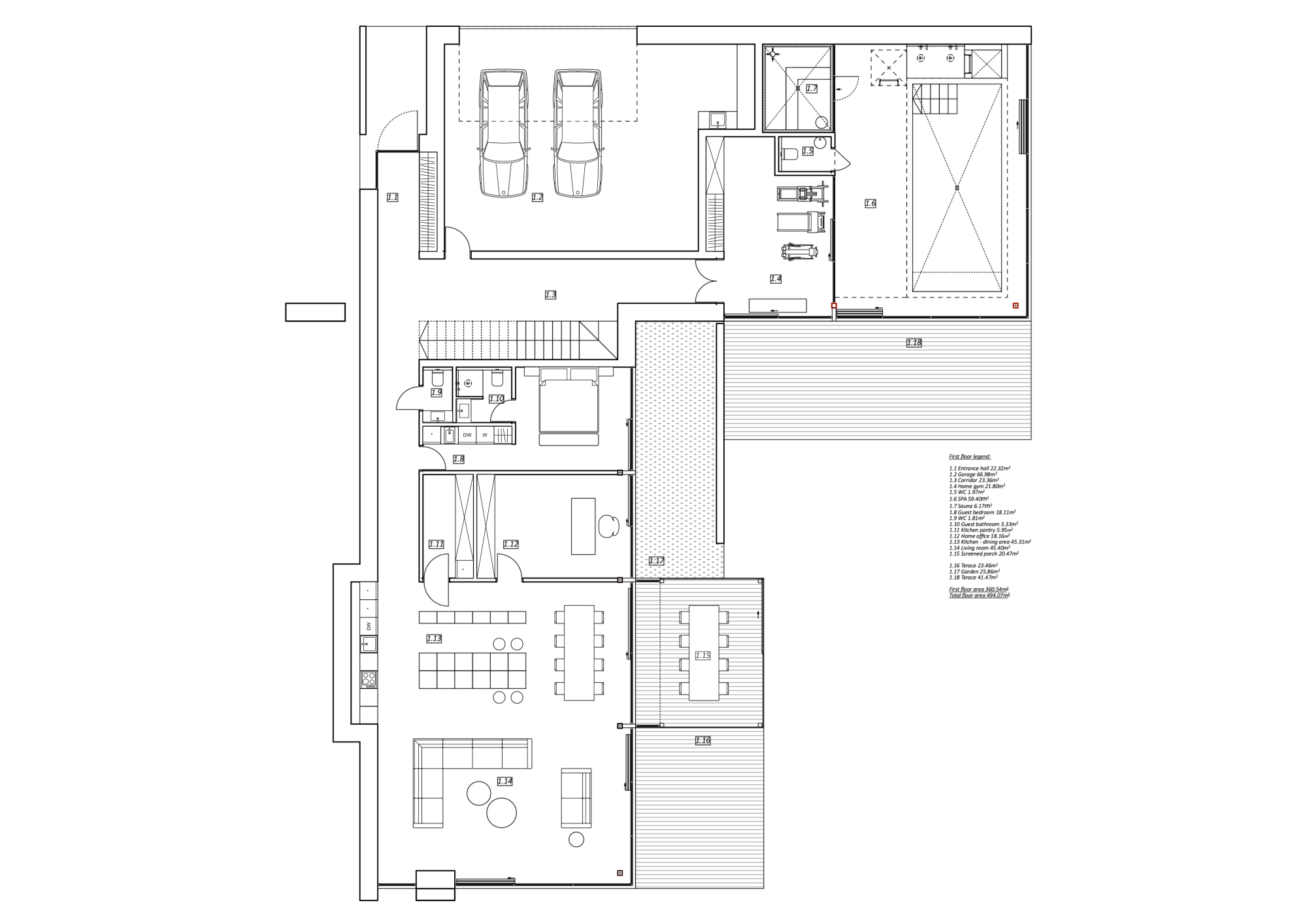
KVADRATŪRA

465 m2

 

METAI

2024 – iki dabar

 

APRAŠYMAS

Privati gyvenamoji vila Vilniuje.