PROJEKTO PAVADINIMAS

VERY GOOD PROJECT 67

 

PASKIRTIS

Privatus, gyvenamasis

 

VIETA

Mažeikiai, Lietuva

 

KVADRATŪRA

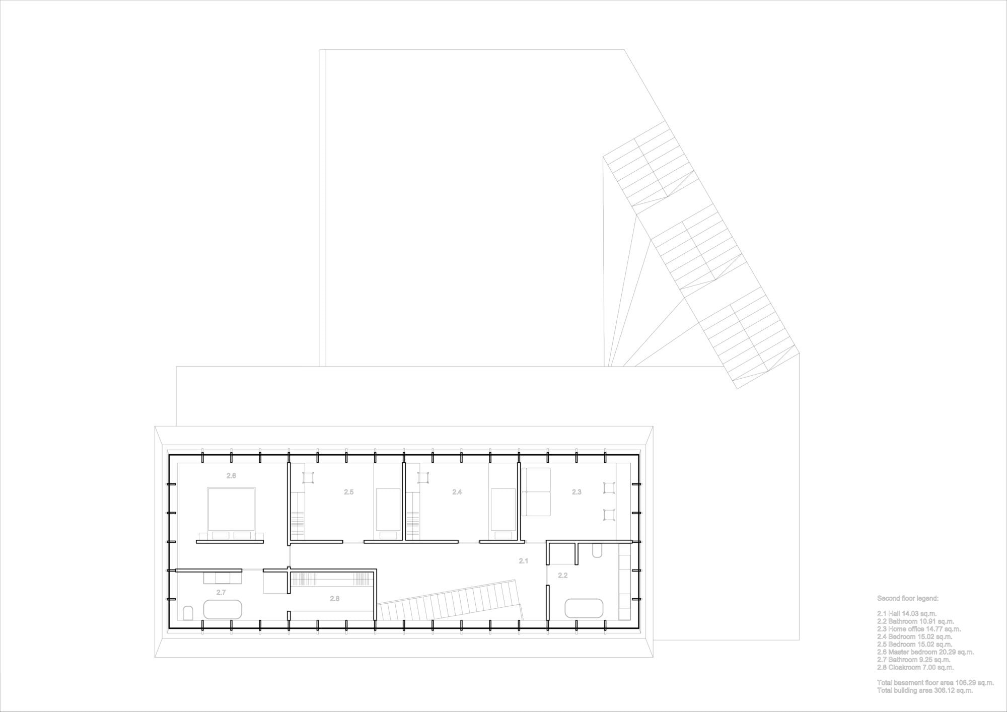
300 m2

 

METAI

2024 – concept