PROJEKTO PAVADINIMAS
VERY GOOD PROJECT 09
PASKIRTIS
Privatus, gyvenamasis
VIETA
PAUPYS, Vilnius, Lietuva
KVADRATŪRA
92 m2
METAI
2018-2020
FOTOGRAFIJOS
Antanas Štrimaitis
APRAŠYMAS
Subtilus, minimalistinis, monochrominis interjeras, kurį papildo šilti, rusvi žemės spalvų tonai, akcentams naudojamos aukso bei vario spalvos.
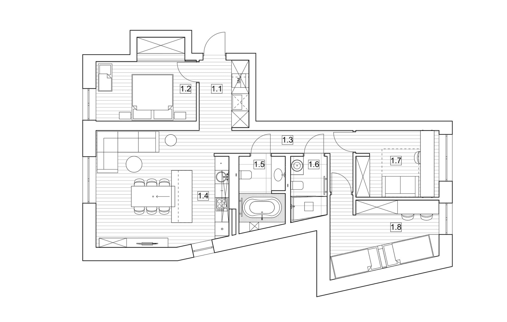
Buto vidaus išplanavimo schema kuria dvi atskiras zonas – tėvų bei vaikų, kurios susitinka buto centre bendroje virtuvės – svetainės ir valgomojo zonoje. Bendro naudojimo erdvėje siekiant efektyviai išnaudoti nedidelį jos plotą pagrindiniu akcentu tampa baro sala, po kuria yra numatytas ištraukiamas valgomojo stalas – leidžiantis transformuoti šią erdvę ir pritaikyti ją didesnėms svečių kompanijoms bei stalo žaidimų vakarams.









